Il Comune di Trani ha candidato a finanziamento, entro la scadenza del 31 ottobre prossimo, un nuovo palazzetto dello sport da realizzare nel quartiere Sant'Angelo. L'occasione è data dall'avviso pubblico «Sport e periferie 2020», emanato dalla Presidenza del Consiglio dei Ministri per l'individuazione di interventi da finanziare con un massimo di 700.000 euro.
Ed a tanto, infatti, ammonta il costo dell'opera pubblica di cui la giunta comunale, poco prima delle elezioni del 20 e 21 settembre, aveva approvato lo studio di fattibilità redatto dal dirigente dell'Area lavori pubblici, Luigi Puzziferri.
Il bando si pone l'obiettivo di «realizzare impianti sportivi o rigenerare strutture esistenti finalizzate all'attività agonistica e localizzate nelle aree svantaggiate, con particolare riferimento alle periferie urbane, rimuovendo gli squilibri economici e sociali esistenti».
E così l'amministrazione comunale, secondo quanto si legge nel provvedimento, «intende continuare nella realizzazione di opere di urbanizzazione del quartiere Sant'Angelo mediante la costruzione di un campo polivalente al coperto, con servizi annessi, nell'area di proprietà comunale sita in adiacenza al sovrappasso ferroviario di viale Spagna con accesso da via Giachetti».
Tale area era già destinata a strutture sportive, come approvato con delibera di consiglio comunale del 7 novembre 2010, ma quell'impianto non avrebbe mai visto la luce, come già accaduto per i parchi che solo ora sono in fase di realizzazione con nuovi finanziamenti.
Infatti i costruttori convenzionati del contratto di quartiere, dopo avere realizzato i loro palazzi, non avevano versato al Comune gli oneri di urbanizzazione perché si realizzassero anche questi ed altri servizi.
Ecco dunque l'incarico, affidato al dirigente dell'Area lavori pubblici e patrimonio, di predisporre uno specifico studio di fattibilità tecnico economica per la realizzazione di questa opera ritenuta di fondamentale importanza per quel quartiere periferico e per tutta la città.
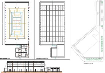
L'importo dell'intervento, come dicevamo, è stato stimato in 700.000 euro, dei quali 555.000 per lavori comprensivi di 20.000 per oneri della sicurezza non soggetti a ribasso: se il finanziamento arriverà, si potrà realizzare una struttura polivalente per basket, pallavolo, calcetto e tennis, coperta con telo su struttura portante in legno lamellare e annessi spogliatoi.
Nella relazione tecnica illustrativa l'ingegner Puzziferri si sofferma su descrizione e tipologia dell'intervento. L'edificio si sviluppa in due corpi: un campo di gioco coperto, di 24 per 44 metri, ed una parte destinata ad ospitare gli spogliatoi con servizi igienici e docce. Completa l'intervento una piccola area parcheggio e la sistemazione di aree esterne con pavimentazione pedonale e verde.
«Particolare attenzione è stata data all'integrazione sociale dell'utente diversamente abile negli spazi comuni - si legge nella relazione -, garantendo la possibilità di usufruire del nuovo impianto sportivo ed i relativi servizi in totale comunità con gli altri utenti».
Il manto dell'impianto di gioco sarà vinilico, su quale verranno riportate le segnature con colori diversi dei campi di basket, calcio a 5, tennis e pallavolo.
L'accesso al campo sarà permesso da quattro porte in acciaio a doppia anta e maniglione antipanico. Al blocco spogliatoi si accederà direttamente dal campo. Questi ultimi saranno tre, vale a dire uno per squadra e quello degli arbitri, e saranno collegati all'area del campo di gioco mediante un portico coperto.




