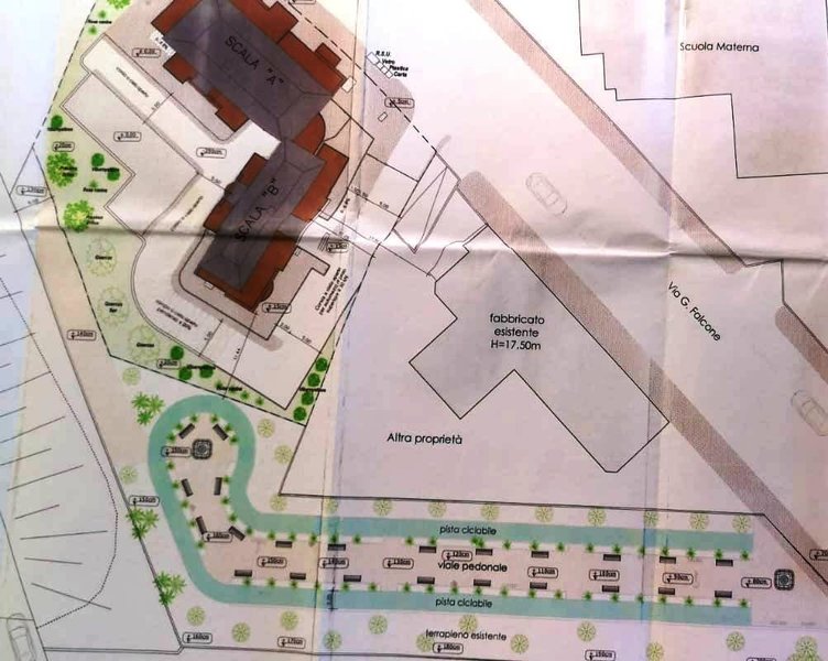
«Ho atteso che si concretizzasse gran parte del percorso, intrapreso per la realizzazione del Parco e della Pista ciclabile in Via Falcone, prima di aggiornarvi sullo stato dell'arte di questa problematica».
Così il consigliere comunale Anna Maria Barresi che continua: «In data 16/11/2018 ho inviato la prima Pec al Dirigente UTC ed Urbanistica Arch. Francesco Gianferrini per accendere i riflettori sulla convenzione che questo Ente aveva realizzato con la Società De Girolamo a scomputo degli oneri di urbanizzazione secondaria, doveva realizzare pista ciclabile ed area attrezzata a verde pubblico».
Barresi rammenta che, «essendo trascorsi cinque anni dalla non realizzazione della convenzione, ho ritenuto giusto e doveroso seguire costantemente l'evolversi degli eventi, affinché, non si bloccasse, nuovamente, il suo compimento. Ora, finalmente, posso confermarvi che la procedura è nella fase finale, stiamo aspettando l'ultima autorizzazione da parte dell’Anas, necessaria all'espletamento della gara d'appalto. La società De Girolamo ha assicurato l'immediato inizio dei lavori dopo l'aggiudicazione ed individuazione della ditta».
E conclude: «Come ho più volte detto, in politica quando si prende in carico un problema non lo si deve abbandonare, ma occorre seguirlo costantemente, nonostante il mostro della burocrazia sia sempre lì a scoraggiarti. Certamente la costruzione non inizierà la settimana prossima, non vi dico che fra un mese ci sarà il parco, ma a breve tutti noi cittadini tranesi, potremo contare su uno spazio verde, spazi che sono una rarità nella nostra città».


